Бункерная кормушка для кроликов своими руками
Самостоятельно смастерить бункерную кормушку дома — несложно. Для этого понадобятся некоторые рабочие инструменты, материал и чертежи
Также важно учитывать общие требования к размерам и размещению емкости, чтобы животным было удобно доставать из неё пищу
Знаете ли вы? Кролики способны видеть на 360°, т. е. они могут смотреть назад, не поворачивая головы (такие движения они все же совершают для того, чтобы оценивать расстояние), только возле кончика носа у этих животных образуется так называемая «мертвая зона», которую кролики не могут видеть.
Размер и требования к яслям
Во-первых, важно, чтобы кормушка была узкой (таких размеров, чтобы кролики в раннем возрасте не могли в неё залезть и «купаться» в еде) и при этом достаточно большой, чтобы животные не страдали от недоедания из-за того, что корм будет быстро кончаться, поскольку за один раз нельзя будет его положить много. Во-вторых, необходимо соорудить емкость размера, соотносящегося с размерами всей клетки
Таким образом, ясли должны быть узкими, достаточно глубокими, и их размер должен быть пропорционален размерам клетки.

Необходимые инструменты
В зависимости от того, из какого материала вы решите конструировать кормушку, вам могут понадобиться: молоток, дрель со сверлом по металлу, закрепочный пистолет, заклепки, ножницы для работы с металлическими предметами, пассатижи.
Также, советуем узнать о таких видах грызунов как: крыса, заяц, тушканчик, белка дегу, сирийский и джунгарский хомяк, бурундук, капибара, соня
Материалы для изготовления кормушек
Наиболее распространенный материал, используемый для изготовления кормушек, — металл.

С этой целью эксплуатируют как оцинковку, так и обычные жестяные листы в зависимости от масштабов работы. Данный материал является надежным, емкость, изготовленная из металла, точно прослужит вашим питомцам долгое время.
Знаете ли вы? Кролики — это животные, славящиеся своими длинными ушами. В 2003 году в Книгу рекордов Гиннесса был занесен кролик по кличке Джероним, длина ушей которого составляла около 80 см. Это был кролик породы английский баран, которая отличается от других пород, прежде всего, необычайно большими размерами ушей.
Если эстетический вид клетки для хозяина кроликов не имеет особого значения, чтобы долго не возиться с изготовлением бункерной кормушки, можно использовать обычную жестяную банку. Выглядеть такие ясли будут примерно вот так:

Однако, такой вариант не совсем безопасен для питомцев, т. к. если неграмотно загнуть края банки, животное может порезаться.
Узнайте больше об особенностях содержания морской свинки в домашних условиях: чем кормить и как правильно выбрать клетку для грызуна.
Довольно часто бункерные емкости для корма изготавливают из дерева. Выбрав этот материал, необходимо учитывать то, что кролики любят грызть, а дерево — отличный материал для оттачивания зубов, поэтому питомцы могут быстро превратить такие ясли в опилки. Чтобы избежать неприятных ситуаций, деревянные кормушки в местах, доступных кроликам, обрамляют металлом, чтобы животные не могли сгрызть емкость.

Проектирование чертежа кормушки
Для того чтобы спроектировать чертеж бункерных яслей, необходимо определиться с её размерами, учитывая не только ширину и высоту, но и размер боковых частей. Можно проектировать чертеж самостоятельно или же найти в Интернете и подогнать размеры под вашу клетку.
Важно! Делайте кормушку такой формы, чтобы вам было удобно её чистить, т. к
если периодически не вычищать из емкости корм, он будет загнивать и может навредить вашим питомцам.
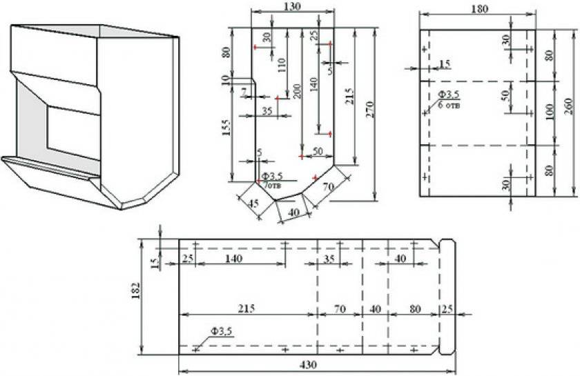
На картинке ниже приведен пример чертежа деревянных яслей со средними размерами (в мм), который можно использовать для изготовления такой емкости в домашних условиях.

Если же вы хотите соорудить ясли из металла, которые прослужат дольше деревянных, чертеж может выглядеть следующим образом:

Особенности кормушки для сена
Чтобы ваши питомцы чувствовали себя комфортно, вы оснащаете кроличью клетку всем необходимым. У кролика есть поилка, кормушка, лоток. Нужно ли еще что-то? Очень полезной составляющей клетки является сенник. Это специальная кормушка, предназначенная для сена. Его можно купить в магазине, а можно построить своими руками.
Так ли нужен этот сенник? Почему же нельзя просто положить сено в обычную кормушку?
- Во-первых, кролики зачастую разбрасывают сено по всей клетке, смешивая его с опилками. С использованием сенника вы обеспечите чистоту в клетке.
- Во-вторых, кролик не сможет перебирать кормом и съедать только лакомые кусочки. Когда травинки приходится доставать по одной, волей-неволей придется отведать все виды полезной травки.
- Для клетки, в которой живет несколько кроликов, сенник вообще незаменим. Ведь часто бывает, что самый сильный кролик садится на горку с сеном и отгоняет остальных. А так все питомцы кормятся на равных условиях, сидя рядком возле кормушки.
- С использованием этого приспособления легче приучить зверька к туалету. Ведь у ушастых специфическая пищеварительная система. Как только они начинают жевать, у них тут же начинает работать кишечник. Повесьте ясли для сена над лотком, и чистота вам обеспечена. На фото – кролики, которые успешно совмещают прием пищи и посещение лотка.
Для сельского хозяйства сенник удобен еще и тем, что в него можно положить запас сена на несколько дней. Так, например, если хозяину нужно уехать на время, или в зимний период, вы избавите себя от необходимости закладывать корм каждый день.
Как видите, такая кормушка придется к месту, будь у вас один декоративный пушистик, или вы занимаетесь промышленным разведением кроликов. Если вас не устроили магазинные варианты, постройте ясли для сена своими руками. Так вы сможете сделать кормушку любого размера и формы.
Виды сенников
По расположению в клетке сенники разделяются на внешние и внутренние. Наружные ясли крепятся к свободной сетчатой стороне клетки, как на фото ниже. Если позволяют размеры клетки, можно расположить кормушку с сеном внутри. Но тогда надо позаботиться, чтобы вам было удобно наполнять ясли свежей травой. Можно сделать отверстие в стене или соорудить подвесную кормушку из сетки.
Очень удобны двусторонние V-образные сенники, особенно для сдвоенных клеток. Что касается размеров, то тут все индивидуально. Для комнатных питомцев удобны небольшие кормушки, а для промышленного выращивания кроликов можно делать ясли на всю ширину клетки. Если вы решили построить кормушку своими руками, продумайте, чтобы сенник был удобен в обслуживании, и выберите подходящий для вас вариант.
Виды кормушек
Для любого живого существа важен правильный рацион. Поэтому правильно подобранные кормушки являются частью успешного кролиководства. Учитывая, что за сутки, к примеру, кролик бабочка около 30 раз подходит к кормушке, с их помощью можно тщательно спланировать режим питания животного и обеспечить чистоту в клетке.

Они делятся на три типа: для сена, для комбикорма и для ботвы и овощных очисток.
Для сена используются так называемые ясли, или сенник. В ежедневном рационе кроликов должно присутствовать сено. Оно помогает животным переварить пищу и усвоить все полезные вещества. О сеннике лучше всего позаботиться еще на этапе строительства клетки для кроликов. Его обычно обустраивают на дверке (это облегчает его чистку), но могут возникнуть проблемы с тем, что маленькие зверьки будут пробираться внутрь сенника и при открытии дверцы вывалятся наружу. Поэтому рекомендуется делать ясли рядом с дверкой.
Конечно, можно положить сено просто на пол, но тогда кроли его затопчут и есть не будут, что нецелесообразно в финансовом плане. А уборки в клетках прибавится.
Зерно и комбикорм обычно засыпают в бункерные кормушки для кроликов. Необходимо контролировать, чтобы емкость такого типа была надежно закреплена на клетке и легко снималась для чистки. Бункеры изготавливают из оцинкованного железа, банки или пластиковой трубы.
Отдельная емкость потребуется для овощей, очисток и ботвы. Ее можно изготовить из любого материала. Такая кормушка должна легко изыматься из клетки для очистки. Она всегда должна находиться в чистоте. Если вы не будете выполнять это требование, в клетке заведутся насекомые и микроорганизмы, которые навредят вашему хозяйству.
Кормушки также можно разделить на следующие виды:
- Ясли. Используются для сена, травы и веточек. Требуют частого подкладывания корма.
- Желобковые кормушки. В них обычно насыпают корнеплоды, концентрированный корм и т. д. Такую кормушку легко изготовить своими руками. Обычно их используют в клетках с большим количеством особей.
- Керамические миски. Производятся на заводах. Как говорилось выше, они не устойчивы. Их с легкостью перевернут большие кролики. Домашние декоративные зверьки имеют меньший размер. Поэтому такие кормушки подходят только им.
- Бункерные кормушки для кроликов наиболее целесообразны. В них корм добавляют раз в несколько дней, что очень удобно, если хозяину нужно отвлечься на пару дней. Кроме того, такая кормушка позволяет избежать чрезмерного расхода корма (животные не смогут разбрасывать, опрокидывать и затаптывать еду).
- Чашечные кормушки. Они изготавливаются из металла, бетона, глины и т. д. Используются для зерна и другого сыпучего корма. Также их можно применять и в качестве поилки.
Другие варианты самодельных кормушек
При желании изготовить кормушки для кроликов можно из остатков строительных материалов: пластиковых трубы, профиля, фанеры или даже пластиковой бутылки.
Самым простая и примитивная конструкция создается из бутылки. Работа выполняется без чертежей, а набор инструментов минимальный. Уровень сложности работ при изготовлении конструкций из трубы, профиля и фанеры немного выше. Два последних вида сооружений делают на основании чертежей.
Из труб
Из пластиковой трубы можно сделать желобковую кормушку для кроликов:
- Электролобзиком отрезается кусок пластиковой трубы, диаметр которой составляет 11 см или больше. Достаточно куска длиной 30 см.
- Трубу нужно разрезать вдоль пополам. Перед этим места разрезов обозначают маркером – это 2 параллельные линии, расстояние между которыми составляет 13 см. Линии доводят до середины отрезка трубы, оставляют перемычку длиной 2 см. Далее линии продолжают вести до конца отрезка.
- Ножовкой или лобзиком трубу надрезают по первым линиям до перемычки. Потом такой же фрагмент отрезают с другого края. Получается желоб с перемычкой посередине, которая удерживает трубу от распрямления.
- Отрезанные куски нагревают с помощью строительного фена, чтобы они распрямились. Лобзиком из них вырезают заглушки для перекрытия торцов.
- Боковые части приклеивают к желобу, делают небольшой отступ от краев. Нужно оставить место, чтобы просверлить отверстия, за которые кормушку будут подвешивать на стенку или дверь клетки.

Все края конструкции нужно проверить на наличие зазубрин, которые могут поранить кроликов. Если они есть, то их шлифуют наждачкой или напильником.
Из строительного профиля
Кормушку для кроликов своими руками можно сделать из профиля по такой схеме:
Нужно подготовить лист профиля 10х4 см, клепки, линейку, карандаш, ножницы по металлу, заклепочник, дрель.

План создания кормушки из профиля:
- Чтобы получить детали, следует перенести чертеж на бумагу или сразу на профиль.
- Потом фрагменты аккуратно вырезают.
- На том участке, где будет находиться корыто, высверливаются отверстия с помощью дрели.
- По намеченным линиям нужно согнуть заготовку.
- Детали соединяют заклепками, предварительно просверливают отверстия.
- К той части кормушки, которая будет повернута к кролику, прикручивают крючки. На них сооружение подвесят на клетку.

Острые края на конструкции необходимо сгладить.
Из пластиковой бутылки
Кормушку изготавливают из бутылки объемом 1,5–2 л. Острым ножом сбоку нужно вырезать прямоугольный проем (20х10 см). Сюда будет засыпаться корм для кроликов. Крышку с бутылки снимать не стоит, иначе корм высыпется.
Готовую кормушку подвешивают на стенку. Для фиксации приспособления используют проволоку или саморезы.
Второй вариант создания аналога бункерной кормушки из двух бутылок (5 л):
- В первой бутылке вырезается проем, через который кролики будут доставать пищу.
- Второе отверстие проделывают с другого конца емкости. Его окружность должна соответствовать диаметру горлышка второй бутылки.
- Во вторую емкость вставляют в первую и засыпают сверху корм.

Из фанеры
Кормушка для кроликов, которая была сделана из фанеры, недолговечная. Ведь у кроликов постоянно растут зубы, их нужно стачивать, поэтому они перегрызают детали конструкции. Чтобы этого не случилось, следует обшить те участки кормушки, которые доступны кроликам, листовым металлом или перфорированными уголками. Это позволит продлить срок эксплуатации приспособлений, а также избежать травмирования зверьков.

Кормушки для кролика должны соответствовать основным требованиям – функциональность, безопасность, удобство использования и надежность. В этом плане выигрывают конструкции бункерного типа. Хотя при содержании большого количества кроликов рекомендуется запастись всеми видами изделий. Чтобы снизить затраты, нужно научиться создавать их своими руками.
Мне нравитсяНе нравится
Делаем сами
Самостоятельное изготовление кормушки – дело совсем несложное. К тому же, это будет менее затратно, чем покупка готового приспособления. Если вы умеете держать в руках молоток, дело за малым: запастись материалами и приступить к работе.
Предлагаем ознакомиться: Болезни декоративных кроликов симптомы лечение
Что нужно?
Кролиководы чаще всего используют самые обычные материалы, которые легко найти. У каждого порядочного хозяина в запасе есть листы фанеры и деревянные доски. Они-то и послужат основой для будущего сенника. Кроме того, понадобятся дополнительные материалы и инструменты:
- металлическая сетка с небольшими ячейками;
- куски проволоки;
- гвозди, саморезы;
- молоток;
- шуруповерт;
- ножовка;
- кусачки или ножницы для резки металла.
Приступаем к работе
Давайте подробнее рассмотрим, как сделать своими руками кормушку ясельного типа. Для начала сделайте замеры клетки и начертите схему будущего сенника. Мы покажем, как смастерить наружную и V-образную кормушку.
- Боковушки сделайте не прямоугольные, а с небольшим расширением кверху или в форме треугольника. Так животным будет удобнее доставать сено.
- Переведите контуры чертежа на лист фанеры.
- Ножовкой или пилой вырежьте две одинаковые детали для боковин и одну – центральную.
- Соедините детали между собой с помощью саморезов.
- Закрепите конструкцию на сетчатой боковине клетки.
Если вы решили сделать V-образную кормушку, то ход вашей работы будет следующий.
- Для двустороннего внутреннего сенника (на чертеже обозначен буквой В) возьмите деревянную доску или брус шириной 10-15 см, выпилите из нее детали будущей кормушки. Нам понадобятся 4 детали для боковушек длиной 40 см и 3 детали для верха и основания по 50 см каждая.
- От металлической сетки отрежьте два прямоугольника 30х40 см. Это будут стенки, через которые кролики будут есть сено.
- Теперь нужно соединить 2 коротких бруса и 1 длинный в виде буквы П.
- Сделайте 2 таких детали и соедините их с основанием под углом 45 градусов. Должна получиться конструкция в виде латинской буквы V, как на фото.
- Осталось прикрепить сетки к боковушкам сенника и поместить его в кроличье жилище.
Схемы и чертеж кормушек
Двусторонний сенник для кроликов
Приступаем к работе
- Боковушки сделайте не прямоугольные, а с небольшим расширением кверху или в форме треугольника. Так животным будет удобнее доставать сено.
- Переведите контуры чертежа на лист фанеры.
- Ножовкой или пилой вырежьте две одинаковые детали для боковин и одну – центральную.
- Соедините детали между собой с помощью саморезов.
- Закрепите конструкцию на сетчатой боковине клетки.
- Для двустороннего внутреннего сенника (на чертеже обозначен буквой В) возьмите деревянную доску или брус шириной 10-15 см, выпилите из нее детали будущей кормушки. Нам понадобятся 4 детали для боковушек длиной 40 см и 3 детали для верха и основания по 50 см каждая.
- От металлической сетки отрежьте два прямоугольника 30х40 см. Это будут стенки, через которые кролики будут есть сено.
- Теперь нужно соединить 2 коротких бруса и 1 длинный в виде буквы П.
- Сделайте 2 таких детали и соедините их с основанием под углом 45 градусов. Должна получиться конструкция в виде латинской буквы V, как на фото.
- Осталось прикрепить сетки к боковушкам сенника и поместить его в кроличье жилище.
Предлагаем ознакомиться: Едят ли кролики лопухи? — АгрономWiki
Как видите, самостоятельное изготовление яслей для сена займет немного времени. А в результате вы увидите, насколько удобным стало кормление животных и поддержание чистоты в их летках.
Выбираем материал
Лучше всего использовать для изготовления емкостей металл, жесть, металлопрофили и т. д. Кролики часто обгрызают клетку, кормушки, поилки и все, что изготовлено из дерева или пластика. Это мягкий материал, который они с удовольствием попробуют «на зуб». Такие кормушки проживут недолго, поэтому, если вы все же отказываетесь от железных посудин, обшейте металлом места, которые, скорее всего, питомцы будут прогрызать. Домик для кролика должен быть безопасным, поэтому не забывайте о том, что все острые и колючие места нужно сгладить, чтобы животное не поранилось и не испортило свой мех.
Изготовление ниппельных поилок своими руками
Приготовив заранее все необходимое для изготовления конструкции, ниппельнуюпоилку можно сделать всего за несколько минут.
Необходимые материалы:
- ниппель на 180 или 360 градусов, который можно приобрести в зоомагазине;
- пластиковую бутылку или небольшую канистру;
- проволоку для крепления;
- кусок резины для прокладки;
- канцелярский нож.
Этапы изготовления:
- У бутылки следует отрезать дно, чтобы ее было удобно мыть, и чтобы внутри емкости не образовывался вакуум.
- В пробке с помощью канцелярского ножа нужно сделать отверстие. Его диаметр должен получиться на два сантиметра меньше диаметра ниппельной насадки.
- Вырезается резиновая прокладка, которая устанавливается так, чтобы уплотнить соединение. Можно проверить, не будет ли протекать вода и если протечка есть, то щель заделывается клеем или герметиком.
- Поилка с ниппелем крепится к стенке клетки с помощью проволоки. Установить ее следует так, чтобы кроликам было удобно пить, а хозяину доливать воду и мыть емкость.
Одной бутылки с водой хватит для нескольких кроликов. Если животных много, то можносделать конструкцию, установив необходимое количество ниппелей в шланг, который подсоединяется к большому резервуару.
Полноценное питание и свежая вода в свободном доступе являются залогом здоровья кроликов. Поэтому принимать пищу и пить они должны из удобных и безопасных кормушек и поилок, которые довольно просто можно сделать своими руками.
Бункерная кормушка из металла
Чтобы сделать емкость для пищи кроликов из железа, вам, кроме дрели, сверла, закрепочного пистолета, заклепок, пассатижей и ножниц по металлу, понадобится жестяной лист.

- Пользуясь чертежом, надо вырезать из листа все необходимые детали.
- Согните детали по начерченным местам сгиба.
- Далее надо наметить места для заклепок и соединить с их помощью детали.
- Проверьте конструкцию на наличие острых углов и небезопасных частей, если такие есть, сгладьте их, чтобы питомцы не поранились.
- Установите емкость на клетку.
Таким образом, бункерная кормушка для кроликов — это самая удобная емкость, в которую можно насыпать животным гранулированный и зерновой корм, поскольку она обеспечивает автоматическую подачу порций, защищает кроличью еду от мусора и имеет достаточно удобную конструкцию. В одной клетке таких яслей можно установить несколько, в зависимости от того, сколько кроликов живет у вас в одной клетке.

Бункерные ясли можно купить или соорудить своими руками, что не составит большого труда, если у вас есть необходимый инвентарь. Надо только спроектировать самостоятельно или найти в Сети подходящий чертеж и, следуя инструкциям, соорудить кормушку из наиболее подходящего вам материала.
Какие бывают кормушки для кроликов?
Каждая тара подходит к определенному виду пищи. Фермер должен определиться с рационом своих питомцев, соответственно, выбрать необходимую конструкцию. Рекомендуется иметь запас других видов, чтобы не застали врасплох смена сезона, роды самок, усиление рациона при возникновении заболеваний, внесение в него разнообразия. Кроме разделения на виды, кормушки для кроликов делят по типу крепления на неподвижные, прочно установленные на стенках клетки, а также подвижные, которые можно перемещать внутри.
Основные виды
Чтобы выбрать подходящую модель необходимо знать основные виды емкостей, применяемых с целью питания животных. Наиболее часто используемые – бункерные. Они имеют ряд преимуществ по сравнению с другими: удобство применения, обеспечение комфорта животным. Благодаря наличию небольшого отверстия еда поступает небольшими порциями автоматически под действием своей тяжести. Наиболее практичным материалом является жесть. Вдоль стенок их можно закрепить по нескольку экземпляров.
К универсальному виду относятся желобковые емкости. Около них могут разместиться сразу несколько особей. Для сена, представляющего необходимый компонент ежедневного рациона, применяют ясельные модели, называемые также сенниками. При желании сэкономить, можно воспользоваться пластиковыми бутылками.
Это интересно: Обзор кормов для домашних кроликов: поясняем по пунктам
Зачем кролику нужен сенник
У многих хозяев кроликов может возникнуть закономерный вопрос – в чем смысл создавать дополнительную кормушку, если внутри клетки у кролика уже имеется уже готовая емкость? Причин тому несколько:
кроликам свойственно обращаться с пищей не самым аккуратным образом. Они часто разбрасывают ее по всей клетке, смешивая с опилками. Сенник же можно прикрепить с обратной стороны клетки, что не позволит кролику получить доступ ко всему «продукту» сразу. В его силах лишь приблизить свою голову к клетке и взять ровно столько, сколько захочет. Это предотвращает как загрязнения внутри клетки, так и неэкономичное расходование корма;
Сенники помогают фермеру сохранять чистоту внутри клеток
- благодаря своему удобному расположению, сенник не дает кролику подолгу перебирать траву в поисках идеального экземпляра. Кролик съедает ту часть корма, которая удобнее всего расположена, что предотвращает преждевременную порчу продукта;
- сенник делает невозможным сам факт конкуренции кроликов за пищу. В особенности это преимущество полезно в тех случаях, когда в одной клетке располагается несколько особей. Дело в том, что иногда в стаде выделяется «захватчик», который садится на кормушку, делая ее своей и отпугивая всех прочих особей. Провернуть похожую «оккупацию» сенника у такого кролика просто не получится;
поскольку кролики опорожняют свой кишечник прямо во время еды, вы можете расположить сенник непосредственно над лотком, что позволит более эффективно соблюдать гигиену внутри клетки. При использовании обыкновенной кормушки корм, разбрасываемый кроликами по полу, со временем мешается с дефекациями, что создает не самые лучшие условия для проживания;
Пример удачного расположения сенника
- без сенников не обходится ни одно хозяйство со сколько-нибудь значительным поголовьем кроликов. Сенник позволяет хранить в себе большое количество корма, которого кроликам хватает на несколько дней, что снимает с кроликовода необходимость постоянно пополнять множество кормушек.
Соответственно, сенники могут пригодиться как для хозяев декоративных кроликов, обитающих в клетке в полном одиночестве, так и для промышленников, занимающихся разведением этих животных на профессиональном уровне.
Это интересно: Помещение для кроликов — оптимальный размер и как сделать самостоятельно







